Winkelbungalow mit 108 m² – ebenerdig wohnen in 03238 Finsterwalde




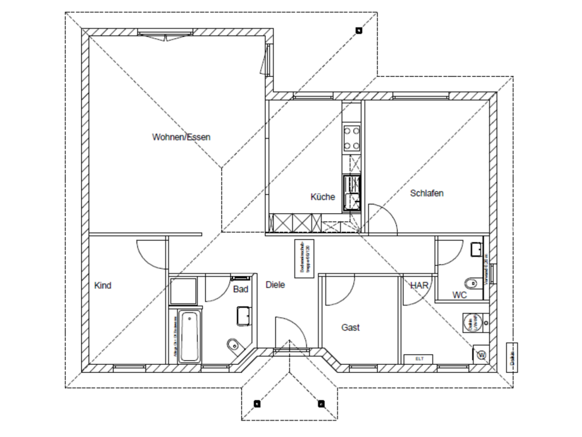
In Finsterwalde entstand ein Winkelbungalow vom Typ 108, der durch seine klare Struktur und den stufenlosen Grundriss überzeugt. Das ebenerdige Wohnen ermöglicht kurze Wege im Alltag und bietet hohen Komfort – heute und in Zukunft.
Der großzügige Wohn- und Essbereich mit direktem Zugang zur Terrasse bildet den Mittelpunkt des Hauses. Große Fensterflächen sorgen für viel Tageslicht und schaffen eine angenehme Verbindung zwischen Innen- und Außenbereich.
Durch die durchdachte Raumaufteilung bietet der Bungalow ausreichend Platz für individuelles Wohnen – mit gut nutzbaren Zimmern und einer klaren Trennung von Wohn- und Rückzugsbereichen.
Besonders praktisch: Von allen wichtigen Räumen aus ist der Garten schnell erreichbar. So entsteht ein Wohngefühl, das Offenheit und Geborgenheit miteinander verbindet.
Nach rund fünfmonatiger Bauzeit wurde das Haus im Oktober 2023 an die Bauherren übergeben.



