Viel Platz für die ganze Familie im Eigenheim in 15926 Luckau - Zaacko





In Luckau entstand für eine Familie ein Einfamilienhaus vom Typ Flair 125, das bewusst auf mehr Platz und Flexibilität ausgelegt wurde. Von Anfang an war klar: Das Haus sollte nicht nur heute passen, sondern auch in den kommenden Jahren genügend Raum für das Familienleben bieten.
Im Mittelpunkt des Hauses steht der großzügige Wohn- und Essbereich mit offener Küche. Hier kommen alle zusammen, hier spielt sich der Alltag ab. Durch die durchdachte Planung wirkt das Haus trotz seiner Größe klar strukturiert und angenehm offen.
Ein besonderer Wunsch der Bauherren war eine erweiterte Raumaufteilung mit insgesamt sechs Zimmern. Dadurch entstand zusätzlicher Platz für Kinder, Arbeiten oder Gäste – ein echtes Plus für Familien, die sich nicht einschränken möchten.
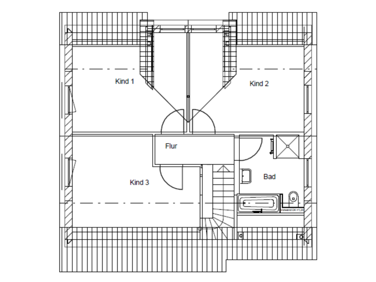
Gleichzeitig wurde das Haus so geplant, dass auch später alle wichtigen Funktionen auf einer Ebene nutzbar sind. So befindet sich im Erdgeschoss bereits eine vollständige Wohneinheit, während das Obergeschoss aktuell den Kindern als eigener Bereich dient.
Auch im Obergeschoss zeigt sich die Stärke dieses Hauses: mehrere gut geschnittene Räume bieten vielseitige Nutzungsmöglichkeiten und lassen sich individuell an die Bedürfnisse der Familie anpassen.
Nach knapp fünfmonatiger Bauzeit wurde das Haus 2023 einen Tag vor Nikolaus an die Bauherren übergeben.



