Niedrigenergiehaus mit 125 m² für eine junge Familie in 03130 Spremberg - Terpe



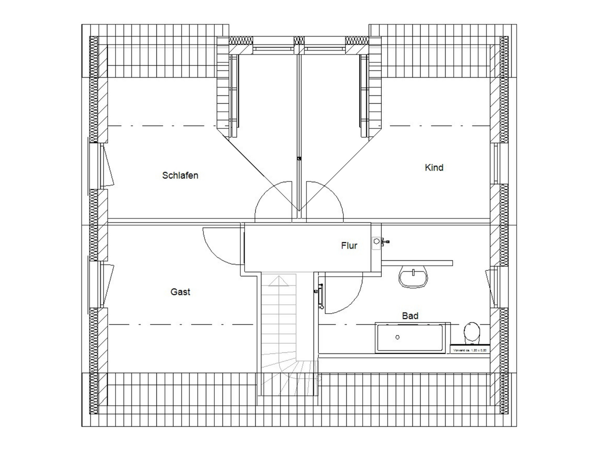
In Spremberg-Terpe plant eine junge Familie den Bau ihres eigenen Hauses. Gemeinsam mit der Baugesellschaft Brechel entsteht hier ein individuell geplantes Flair 125 mit rund 125 m² Wohnfläche.
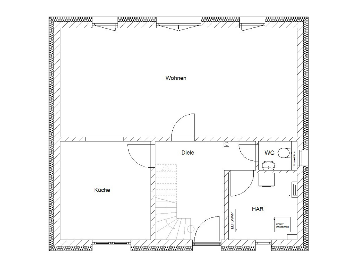
Das Flair 125 bietet einen durchdachten Grundriss mit großzügigem Wohn- und Essbereich sowie einer offenen Küche als Mittelpunkt des Hauses. Große Fenster sorgen für viel Tageslicht und schaffen eine angenehme Verbindung zum Garten.
Für die Bauherren spielte auch das Thema Energieeffizienz eine wichtige Rolle. Deshalb entschieden sie sich für ein Niedrigenergiehaus, das die Voraussetzungen für eine Förderung im Rahmen des KfW-Programms 300 erfüllt. Aktuell wartet die Familie auf die Baugenehmigung für ihr Bauvorhaben in Spremberg-Terpe, während parallel bereits die nächsten Schritte für die Umsetzung vorbereitet werden.



