Modernes Landhaus mit ca. 158 m² – individuell geplant in 03222 Lübbenau





In Lübbenau entstand ein modernes Landhaus vom Typ 142, das individuellen Wohnstil und großzügige Raumgestaltung miteinander verbindet. Dieses Bauvorhaben zeigt, wie flexibel sich klassische Hauskonzepte an persönliche Vorstellungen anpassen lassen.
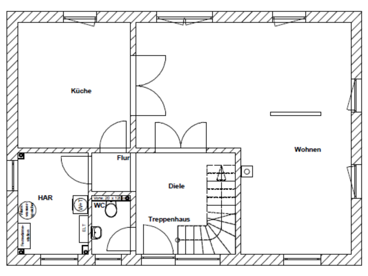
Im Mittelpunkt steht der weitläufige Wohn- und Essbereich mit offener Küche, der viel Platz für das gemeinsame Leben bietet. Großzügige Fensterflächen sorgen für helle Räume und schaffen eine angenehme Verbindung zum Garten.
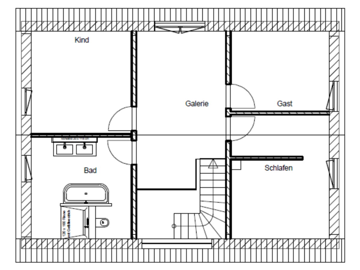
Auch im Obergeschoss setzt sich der Anspruch an Komfort und Individualität fort: Neben einem großzügigen Schlafzimmer mit Ankleide stehen weitere Räume zur Verfügung, die vielseitig genutzt werden können – ob als Kinderzimmer, Arbeitsbereich oder Rückzugsort.
Besonderer Wert wurde bei diesem Haus auf eine enge Abstimmung während der Bauphase gelegt. Planung, Umsetzung und Kommunikation griffen dabei reibungslos ineinander, sodass das Bauvorhaben für die Bauherrin jederzeit gut nachvollziehbar und planbar blieb.
Nach rund fünf Monaten Bauzeit wurde das Haus im November 2023 an die Bauherren übergeben.



