Modernes Einfamilienhaus mit 134 m² Wohnfläche in 03130 Felixsee - Klein Loitz



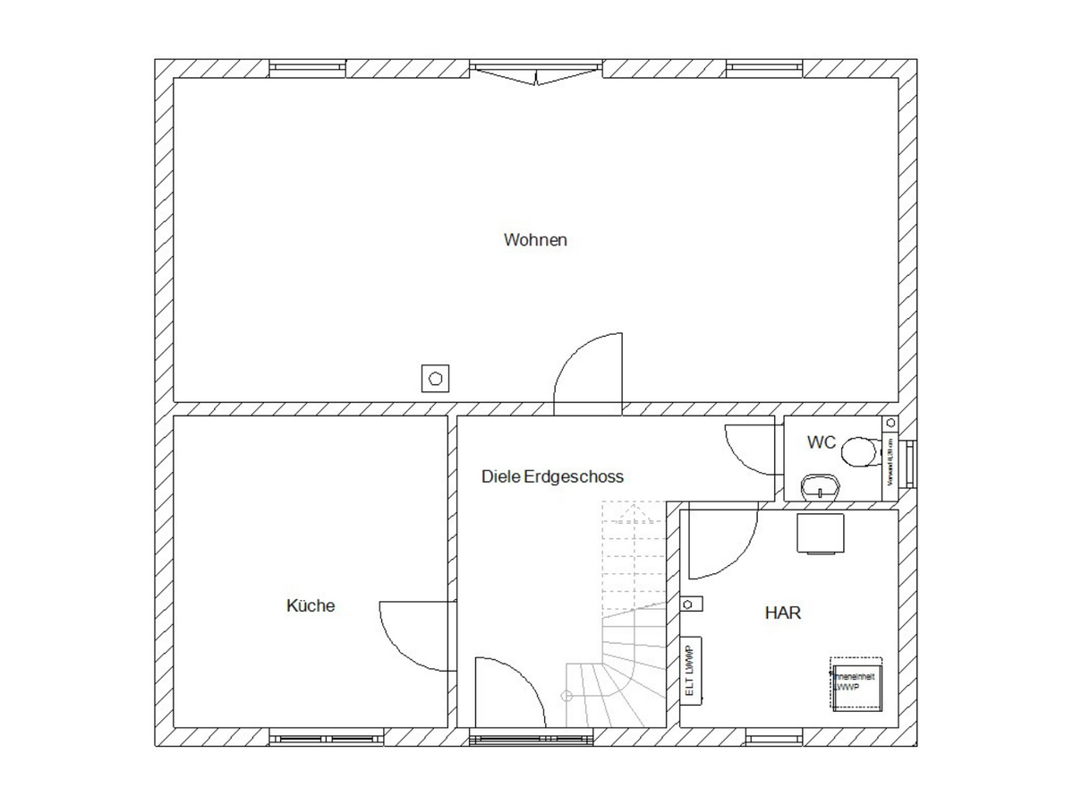
In Felixsee-Klein Loitz plant eine junge Familie den Bau ihres eigenen Hauses. Gemeinsam mit der Baugesellschaft Brechel entsteht hier ein Einfamilienhaus vom Typ Flair 134 mit rund 134 m² Wohnfläche.
Das Flair 134 bietet einen großzügigen Grundriss mit offen gestaltetem Wohn- und Essbereich sowie einer Küche als zentralem Treffpunkt des Familienlebens. Große Fensterflächen sorgen für viel Tageslicht und schaffen eine angenehme Verbindung zum Garten.
Aktuell wartet die Familie auf die Baugenehmigung für ihr Bauvorhaben in Felixsee-Klein Loitz. Sobald diese vorliegt, können die nächsten Schritte für den Baustart vorbereitet werden.



