Modernes Einfamilienhaus mit 113 m² Wohnfläche in 03051 Cottbus - Gallinchen



In Cottbus-Gallinchen plant eine junge Familie den Bau ihres eigenen Hauses. Gemeinsam mit der Baugesellschaft Brechel entsteht hier ein Einfamilienhaus vom Typ Flair 113 mit rund 113 m² Wohnfläche.
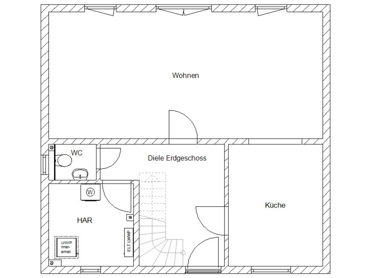
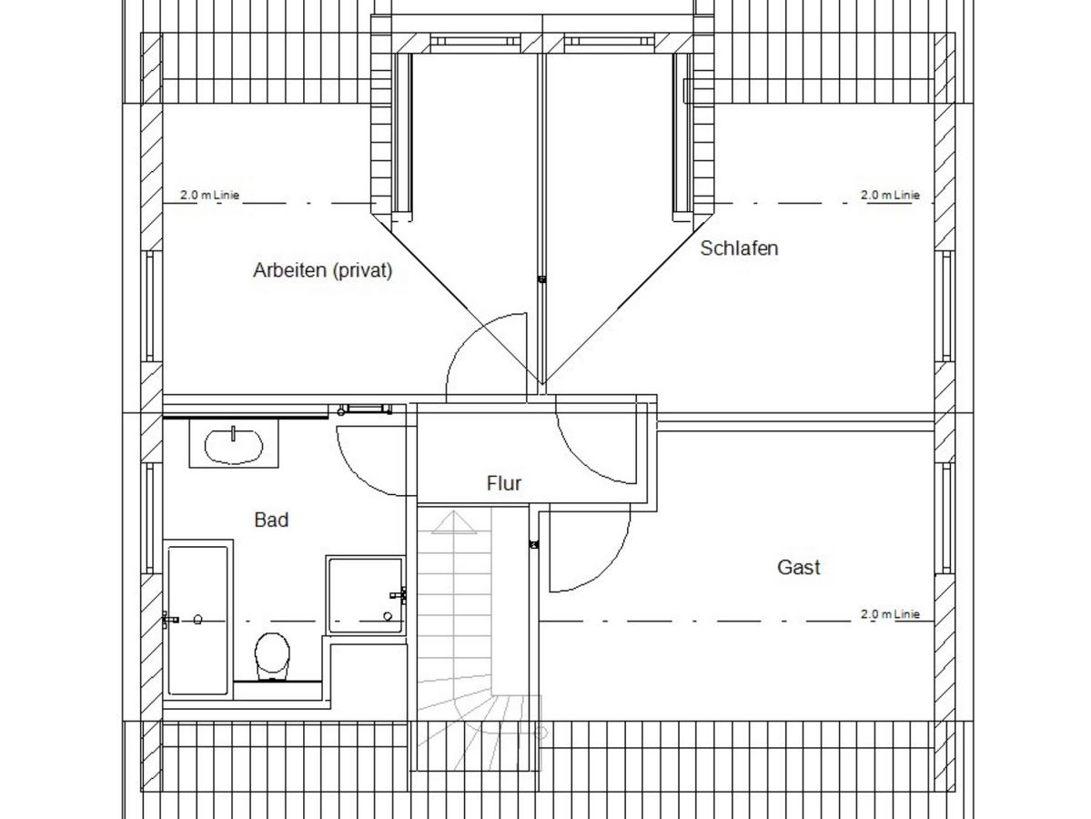
Das Flair 113 überzeugt durch einen durchdachten Grundriss mit großzügigem Wohn- und Essbereich sowie einer offenen Küche als Mittelpunkt des Hauses. Große Fenster sorgen für viel Tageslicht und schaffen eine angenehme Verbindung zum Garten.
Die Baugenehmigung für das Bauvorhaben liegt bereits vor. Aktuell laufen die Vorbereitungen für den Baustart.



