Traumhaus mit Garten bei Dresden in 01987 Schwarzheide





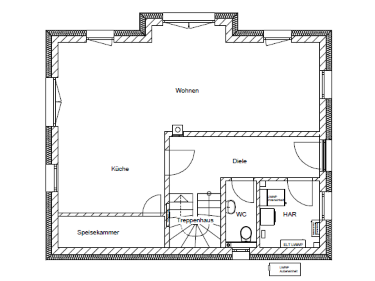
Du suchst ein Haus mit dem gewissen Extra, das aussieht wie ein Architektenhaus, aber trotzdem bezahlbar ist? Dann ist das Lichthaus 121 genau richtig für dich! Herzstück des Hauses ist das weitläufige Wohnzimmer mit Blick in den Garten. Hohe Fensterelemente sorgen im 120 m² großen Haus für besonders angenehmes Tageslicht. Alle Räume sind großzügig ausgestaltet und optimal miteinander verbunden.
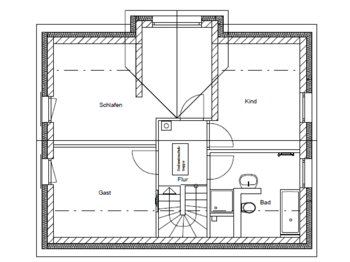
Im Obergeschoss findet jeder sein eigenes Reich in einem der drei Zimmer. Auch ein Arbeitsbereich findet im Lichthaus Platz.
Dieses besondere Ambiente war ausschlaggebend für die junge Familie, sich für diesen Haustyp zu entscheiden. Baubeginn war am 07.10.24 und mit einer winterbedingten Pause wurde das Haus sieben Monate später an die stolzen Bauherren übergeben.



