Individuell geplantes Stadthaus mit 124 m² Wohnfläche in 02943 Weißwasser



n Weißwasser plant eine vierköpfige Familie den Bau ihres eigenen Hauses. Gemeinsam mit der Baugesellschaft Brechel entsteht hier ein Stadthaus vom Typ Flair 124 mit rund 124 m² Wohnfläche.
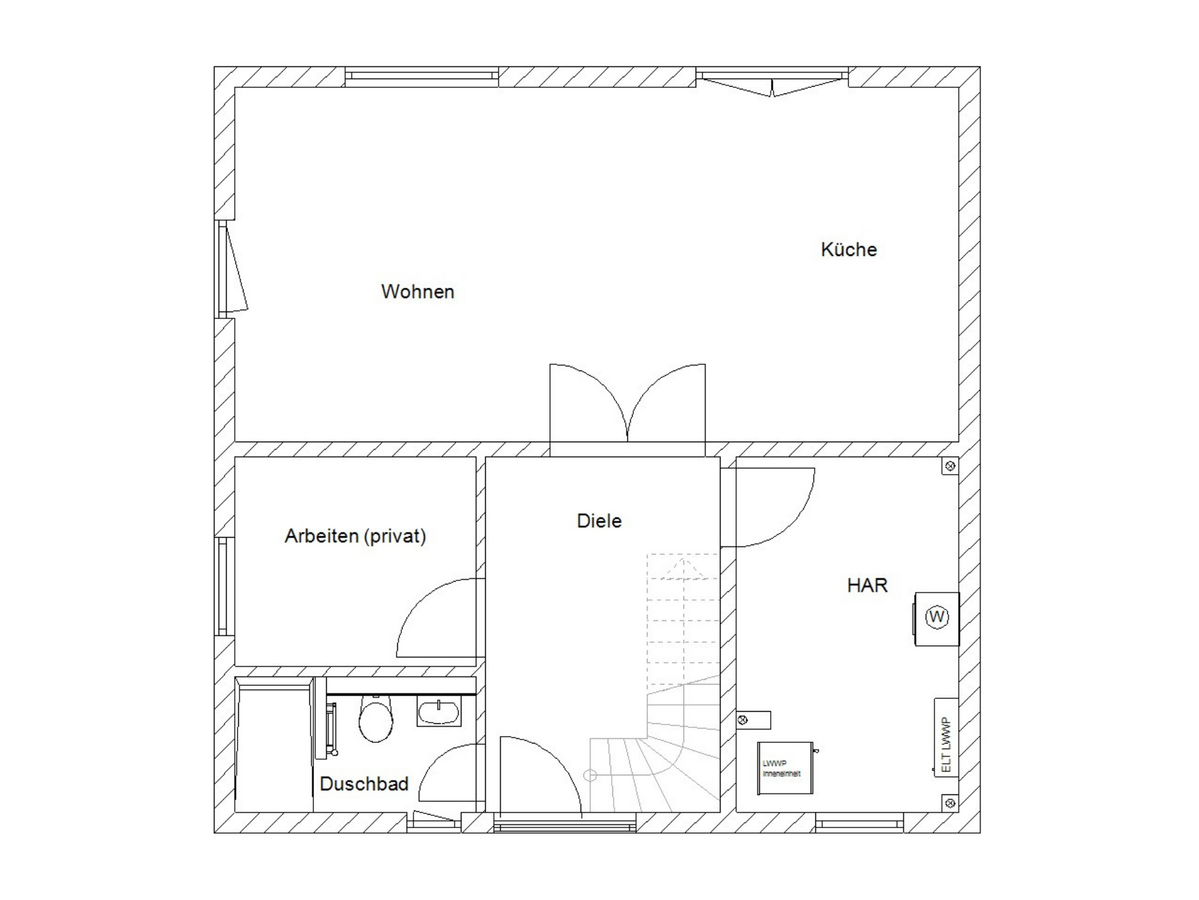
Das Stadthaus überzeugt durch seine klare Architektur und einen durchdachten Grundriss. Für dieses Bauvorhaben wurde das Erdgeschoss individuell angepasst, um die Räume optimal auf die Bedürfnisse der Familie abzustimmen. Der großzügige Wohn- und Essbereich bildet den zentralen Treffpunkt des Familienlebens.
Die Baugenehmigung für das Bauvorhaben liegt bereits vor. Aktuell laufen die Vorbereitungen für den Baustart.



