Individuell geplantes Einfamilienhaus nahe Cottbus in 15910 Bersteland - Freiwalde





In Freiwalde am Spreewald entsteht derzeit das neue Zuhause einer jungen Familie. Gemeinsam mit der Baugesellschaft Brechel planen die Bauherren ein individuell angepasstes Lichthaus 121, das auf ihre Wohnwünsche und die Gegebenheiten des Grundstücks abgestimmt wird. Die ruhige Lage nahe Cottbus verbindet ländliches Wohnen mit guter Anbindung an die Region.
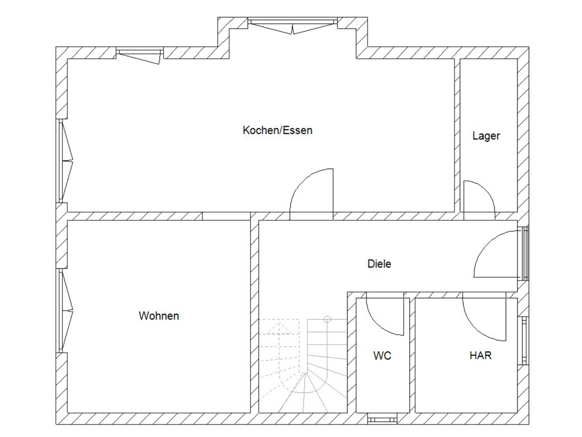
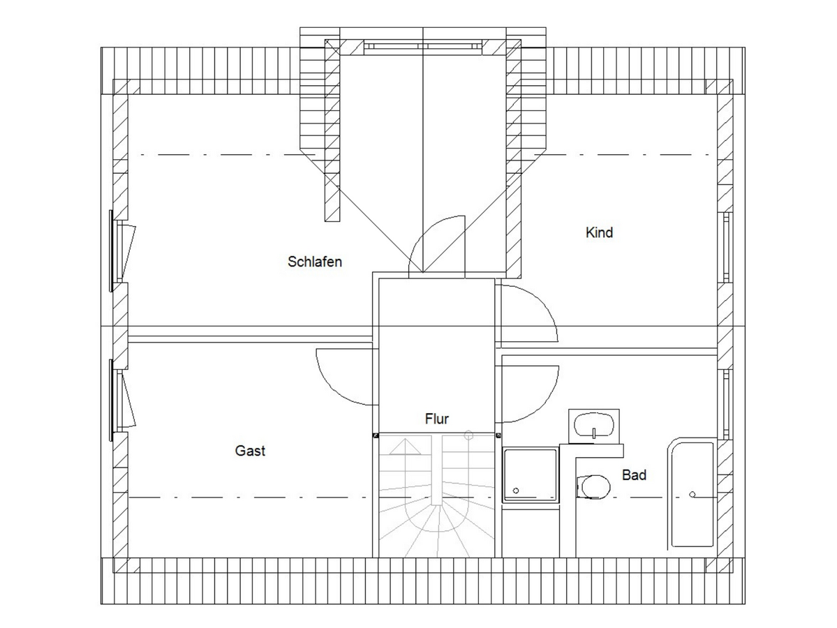
Die Bauherren entschieden sich für das Lichthaus 121, weil es großzügige Wohnräume mit viel Tageslicht verbindet und gleichzeitig kompakt geplant ist. Der Grundriss wurde gemeinsam mit den Bauherren angepasst, sodass die Räume optimal zu ihrem Alltag und ihren persönlichen Vorstellungen vom eigenen Zuhause passen.
Der Baustart für dieses Bauvorhaben ist bereits erfolgt. Mit den ersten Erdarbeiten hat die Bauphase begonnen.
Inzwischen ist das Erdgeschoss fertiggestellt und die Arbeiten am Obergeschoss haben begonnen. Das Richtfest ist für den 30.04. geplant.



