Großzügiges Traumhaus mit 180 m² bei Cottbus in 03159 Döbern



Im Flair 180 Duo vereint sich geradliniges Stadthaus-Design und gemütliche Mehrfamilienhaus-Atmosphäre. In zwei Wohnungen unter einem Dach haben die Bewohner ausreichend Raum für sich, das Treppenhaus ist der Treffpunkt der urbanen Hausgemeinschaft. Jede Wohneinheit bietet ihre ganz eigene Besonderheit, gemeinsam ist ihnen die clevere Grundrissgestaltung mit ausreichend Stauraum.
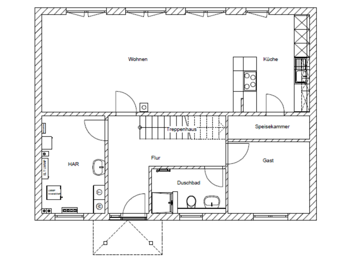
Im Erdgeschoss spielt sich der Alltag in Wohnzimmer und Küche ab, der Übergang zwischen diesen Räumen ist teilweise offen gestaltet. Ein Highlight ist die Abstellkammer direkt neben der Küche, die nicht nur Platz für Leckereien bietet. In zwei weiteren Zimmern finden die Bewohner Raum für sich.
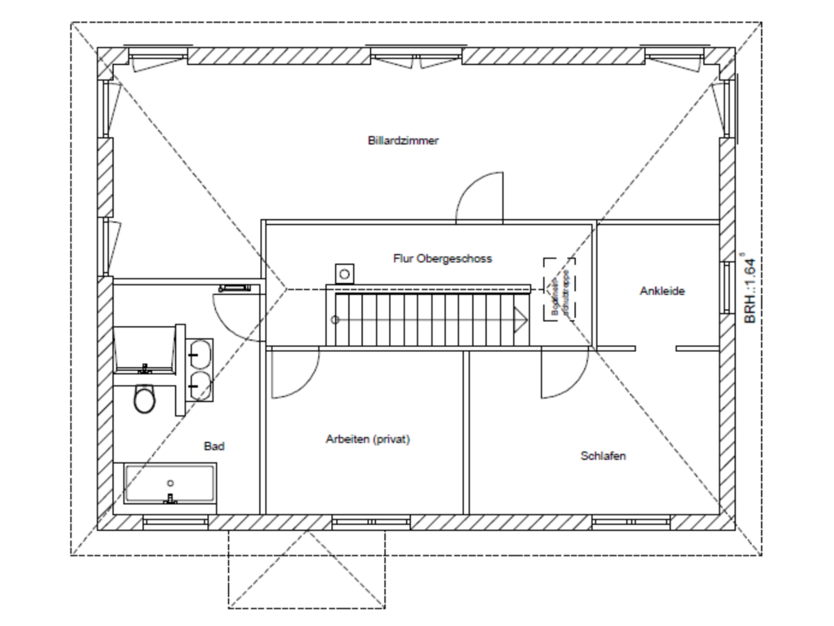
Auch im Obergeschoss wird moderner Wohnkomfort großgeschrieben. Während im geräumigen Wohnzimmer alle zusammenkommen, bieten drei weitere Zimmer einen individuellen Rückzugsort. Ausreichend Stauraum ist dank eines Abstellraums im Flur und einer Ankleide im Schlafzimmer gewährleistet.
In diesem Fall war primär die Größe des Hauses ausschlaggebend bei der Entscheidung für diesen Haustyp. Wir befinden uns in der Planungsphase.



