Großzügig wohnen im Grünen bei Senftenberg in 01993 Schipkau



Das fast 135 m² große Flair 134 bietet Freiraum für die ganze Familie. Die offen gestaltete Diele führt direkt ins großzügig angelegte Wohnzimmer, das in dieser Hausvariante den Essbereich und die Küche integriert und damit zum Mittelpunkt für den Familienalltag wird. Aus der ursprünglichen Küche wurde so ein Arbeitszimmer. Darüber hinaus wurde das Gäste-WC in ein Duschbad erweitert.
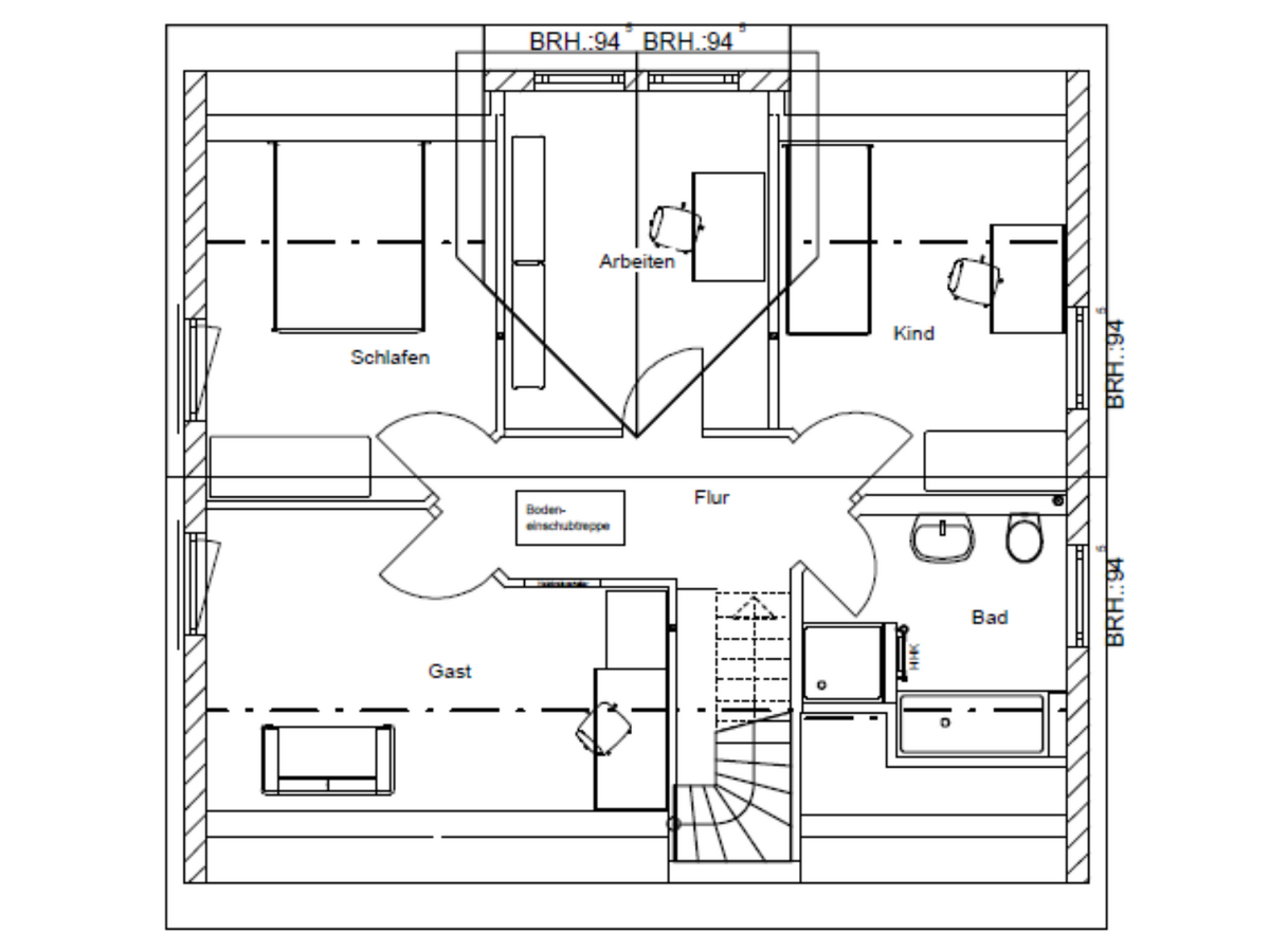
Im Obergeschoss befinden sich vier große Räume – ideal für Familien, die Freiraum für jedes Familienmitglied wünschen.
Die Flexibilität, die das Flair 134 seinen Bewohnern bietet, war auch ausschlaggebend bei der Entscheidung für diesen Haustyp.



