Großzügig wohnen im Grünen bei Dresden in 01993 Schipkau





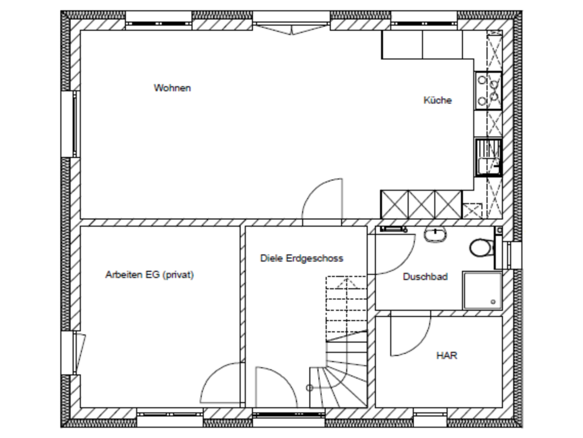
Das fast 135 m² große Flair 134 bietet Freiraum für die ganze Familie. Die offen gestaltete Diele führt direkt ins großzügig angelegte Wohnzimmer, das in dieser Hausvariante den Essbereich und die Küche integriert und damit zum Mittelpunkt für den Familienalltag wird. Aus der ursprünglichen Küche wurde so ein Arbeitszimmer. Darüber hinaus wurde das Gäste-WC in ein Duschbad erweitert.
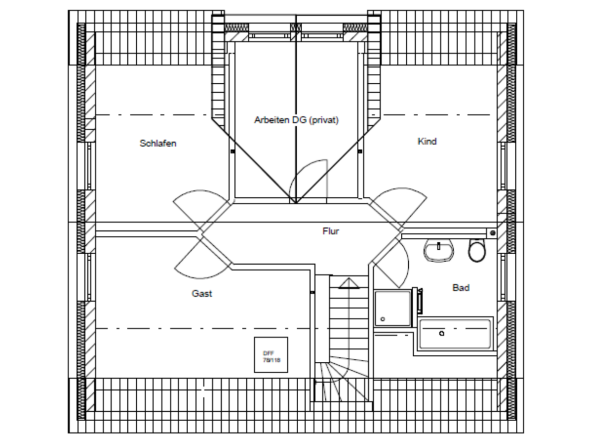
Im Obergeschoss befinden sich vier große Räume – ideal für Familien, die Freiraum für jedes Familienmitglied wünschen.
Die Flexibilität, die das Flair 134 seinen Bewohnern bietet, war auch ausschlaggebend bei der Entscheidung für diesen Haustyp. Baubeginn war am 27.01. und knapp sechs Monate später Hausübergabe an die stolzen Bauherren.
Schaut euch hier das Richtfestvideo an!



