Niedrigenergiehaus mit Indach-PV-Anlage bei Cottbus in 01945 Senftenberg - Peickwitz





Eines unserer beliebtesten und flexibelsten Einfamilienhäuser - das 125 m² große Flair 125 mit der Wohlfühlgarantie. Das helle freundliche Wohnzimmer mit dem großzügigen Essbereich und dem tollen Blick in den Garten ist ein absoluter Anziehungspunkt. Die geräumige Küche ermöglicht dir das gemeinsame Kochen mit Familie oder Freunden. In diesem Haus war den Bauherren ein zusätzliches Zimmer im Erdgeschoss wichtig.
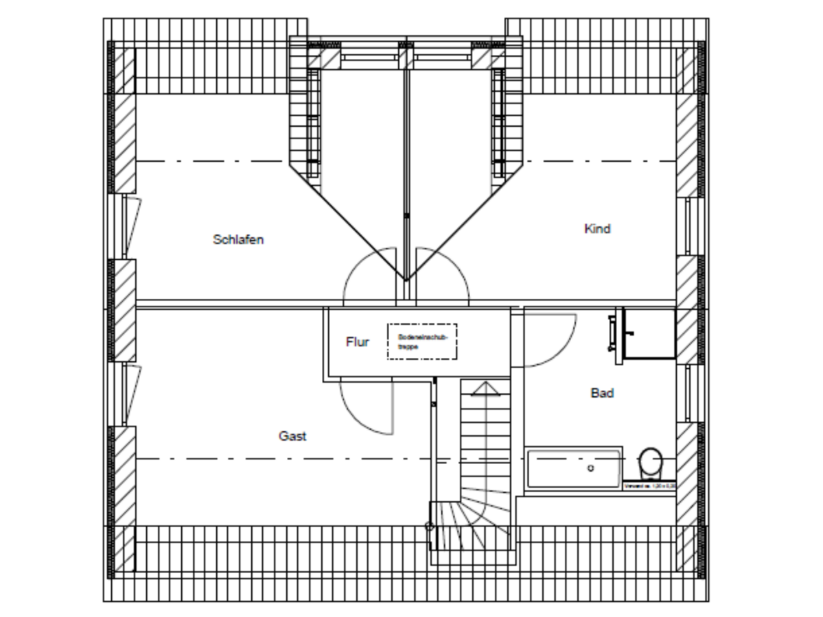
Im Obergeschoss bieten drei gleich große Zimmer genug Platz zur persönlichen Entfaltung, eine weitere Unterteilung dieser Etage ist möglich. Für große Familien können in diesem Haustyp bis zu sechs Zimmer eingeplant werden.
Flexibilität spielte auch für diese junge Familie eine entscheidende Rolle bei der Wahl des passenden Haustyps. Den krönenden Abschluss bildet die erstmals bei unseren Häusern installierte Indach-Photovoltaikanlage.
Baubeginn war am 03.06.24 und nach knapp fünf Monaten wurde das Haus an die glücklichen Bauherren übergeben.



