Einfamilienhaus mit 125 m² bei Bautzen in 02906 Hohendubrau - Gebelzig




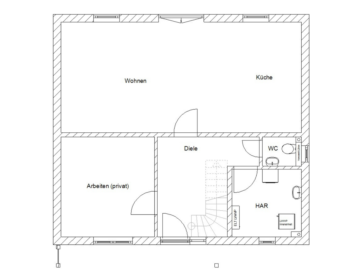
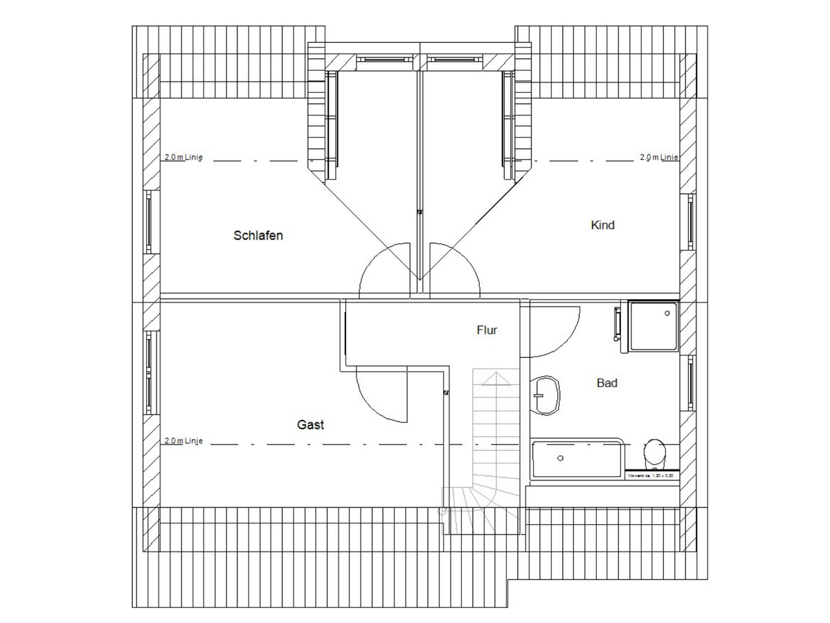
In Hohendubrau bei Bautzen erfüllt sich eine dreiköpfige Familie den Wunsch nach einem eigenen Zuhause. Mit dem Bau ihres Einfamilienhauses mit rund 125 m² Wohnfläche entsteht hier ein Haus, das auf die Bedürfnisse der Familie zugeschnitten ist.
Bei der Planung war den Bauherren wichtig, den Grundriss an ihre persönlichen Vorstellungen anzupassen. So wurde unter anderem ein zusätzliches Zimmer im Erdgeschoss vorgesehen, um im Alltag mehr Flexibilität zu schaffen.
Ein Teil der Innenausbauarbeiten wird von der Familie in Eigenleistung umgesetzt. So entsteht Schritt für Schritt ein Zuhause, das genau zu den Vorstellungen der Bauherren passt.
Der Bau dieses Einfamilienhauses hat inzwischen begonnen. Aktuell laufen die Tiefbauarbeiten, die Bodenplatte wird in der kommenden Woche vorbereitet.



